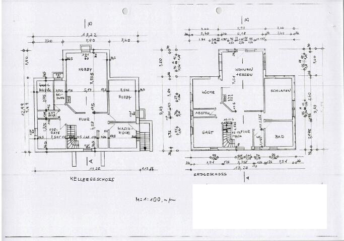
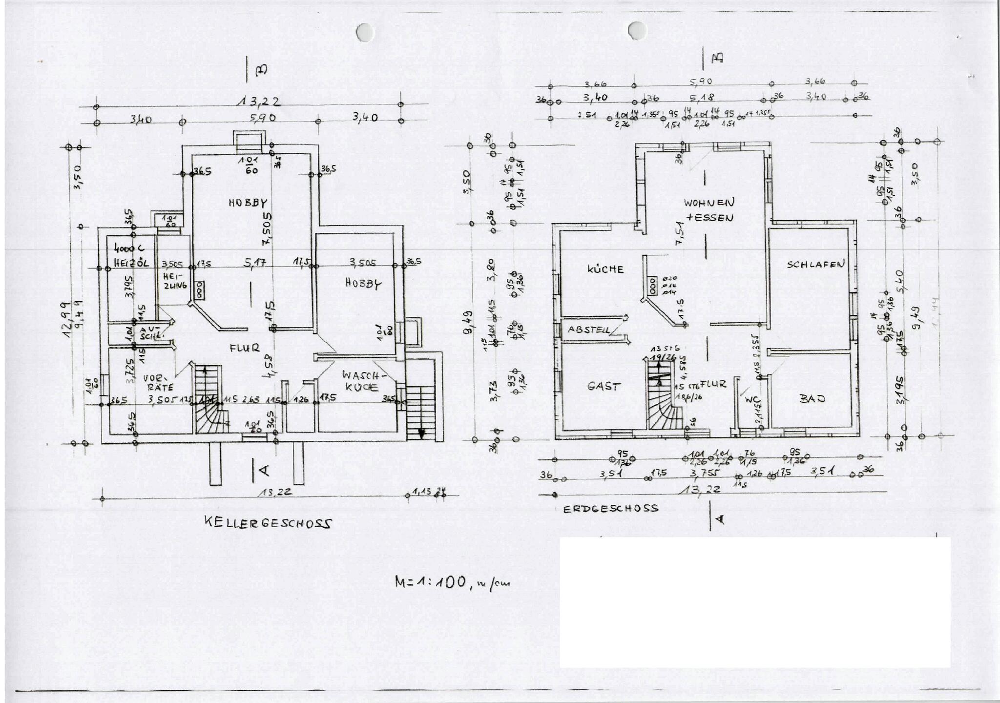
Immobilien Nr. 1988